网站公告列表     本站最新引进2007-2008款一汽丰田威驰,卡罗拉,普锐斯,广州丰田雅力士,汉兰达,酷路泽,丰田大霸王等车型维修资料,包括维修手册,电路图  [king  2008年10月16日]        
加入收藏
设为首页
联系站长
您现在的位置: 维修资源网-汽车维修资料库-挖掘机维修资料-工程机械电子零配件目录-挖掘机发动机重卡车客车叉车资料 > 叉车资料 > 曼尼通 MANITOU叉车 > 文章正文
  [组图] 2020年MANITOU曼尼通叉车维修手册车间手册零件手册         ★★★ 【字体:
2020年MANITOU曼尼通叉车维修手册车间手册零件手册
2020年MANITOU曼尼通叉车维修手册车间手册零件手册
作者:佚名    文章来源:中国维修资源网原创    点击数:    更新时间:2021-12-24    


2020年MANITOU曼尼通叉车维修手册车间手册零件手册

大小:6.12 GB
格式:PDF
语言:英语
品牌:MANITOU 曼尼通
机器类型:叉车,卡车装叉车,旋转电传机
文件类型:MRT,MC系列维修手册,维修手册,零件目录
最新数据:2020年
适应系统
:所有系统32和64位

Model Details:

1/ Manitou Rotating Telehandlers Update 2020:
Manitou 1106D Euro3 (Perkins Engine) Repair Manual_647413EN.pdf
Manitou 120-150-175 cv Euro 3 (OM 904 LA)Repair Manual_647370EN.pdf
Manitou 220 TJ-X(XP) 2RD_4RD ST3A S1 Repair Manual_647648EN.pdf
Manitou 854E-E34TA, 854F-E34T (Perkins Engine) Repair Manual_647173EN.pdf
Manitou 854F-E34TA (Perkins Engine) Repair Manual_647605EN.pdf
Manitou Air Heater (Airtronic-Airtronic M) Repair Manual_647406EN.pdf
Manitou Cylinder Handler 4T - CH 4 Repair Manual_647166EN.pdf
Manitou Cylinder Handler CH 10 Repair Manual_647163EN.pdf
Manitou DANA Axle 212 47983EN Repair Manual_08-2020.pdf
Manitou DANA Axle 213 647142EN Repair Manual.pdf
Manitou Engine 1104D Euro 3-80CV,100CV Repair Manual_647016.pdf
Manitou Gear Box HSE07-10 Repair Manual_647409EN.pdf
Manitou Hydrostatic Motor H1 060-080-110-160-250 Repair Manual_647069.pdf
Manitou Hydrostatic Pump A4VG Series 40 Repair Manual_647447.pdf
Manitou Hydrostatic Pump H1 045-053-060-068 647039EN Repair Manual.pdf
Manitou Hydrostatic Pump H1 069 TO 165 Repair Manual_647424.pdf
Manitou Hydrostatic Transmission BP 249 Handbook_47910.pdf
Manitou Motor A6VM Serie 71 Repair Manual_647524EN.pdf
Manitou Motor Series 51 51-1 Repair Manual_647040EN.pdf
Manitou MRT 1432-2540 (Type 212,357) Repair Manual.pdf
Manitou MRT 1440, MRT 1640, MRT 1840 Easy Repair Manual_647428EN.pdf
Manitou MRT 1440,MRT 1640,MRT 1840 Easy Series Repair Manual.pdf
Manitou MRT 1540 Turbo MOT 1004 4T Repair Manual_73847EN.pdf
Manitou MRT 1850, MRT 2150, MRT 2540 Easy Repair Manual_M146EN.pdf
Manitou MRT 1850,MRT 2150, MRT 2540 Repair Manual_647175EN.pdf
Manitou MRT 1850,MRT 2150, MRT 2540 Repair Manual_648676EN.pdf
Manitou MRT 1850,MRT 2150, MRT 2540 Repair Manual_M205NL.pdf
Manitou MRT 2145 Easy 360,400 ST3B S1(21m Easy Series) Repair Manual_647810.pdf
Manitou MRT 2145-2545, MRT-X 2545-2145 Easy Series Repair Manual_647587EN.pdf
Manitou MRT 2150, MRT 2540 Plus-ST4 S1 Repair Manual_647585EN.pdf
Manitou MRT 2150-2550, MRT-X 2550-2150 Repair Manua;_647586EN.pdf
Manitou MRT 2470-3050, MRT-X 3050 2470 Repair Manual_647625EN.pdf
Manitou MRT 3050, MRT-X 3050 Privilege ST3A Repair Manual_647396EN.pdf
Manitou MRT 3255, MRT-X 3255 Repair Manual_647488EN.pdf
Manitou MRT(X) 1440, MRT(X) 1640, MRT(X) Easy Series 1840 Repair Manual_647638EN.pdf
Manitou MRT-X 1440 Spare Parts Catalog_648704.pdf
Manitou Radio Control C26-Pro Repair Manual_647391FR.pdf
Manitou Rotation Telehandler BP 249 Hydrostatic Transmission_47981.pdf
Manitou Service Pump Series 10 Repair Manual_647525EN.pdf
Manitou TJ 65(P) 2RD_4RD T4 S1 Repair Manual_647783EN.pdf
Manitou Transfer Box 357 Repair Manual_647379EN.pdf
Manitou Tyre Handler TH 64 Repair Manual_647162EN.pdf

2/ Manitou Forklift Truck Update 2020:
Manitou CD(15-35P), CG(15-35P) Repair Manual.pdf
Manitou Engine D1503 D1703 D1803 V2003 V2203 V2403 Repair Manual_647005EN.pdf
Manitou Engine V3600V Euro 3 Repair Manual_647049EN_1.0.0.pdf
Manitou ES 504 507 510 GPDF ac Repair Manual_647167EN.pdf
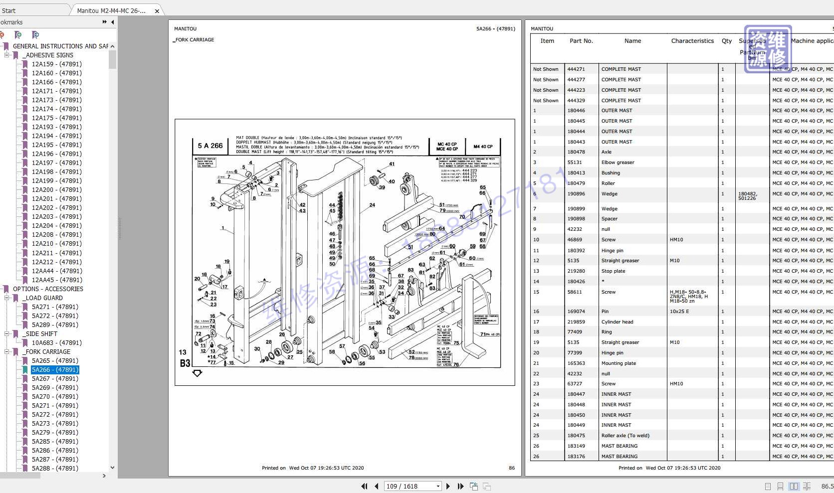
Manitou M2-M4-MC 26-30-40-50-60 CP Series Spare Parts Catalog_47891.pdf
Manitou M2-M4-MT-MB-4RM 26-30-40-50 CP Repair Manual_47873.pdf
Manitou M26-M30-M40-M50 P ST3B S4 EU Repair Manual_647569EN.pdf
Manitou M26-M50 MC30-MC79 Series 3-E2 Repair Manual.pdf
Manitou M26_M30-2, M26_M50-4 MC30 Repair Manual_547518EN.pdf
Manitou MC 18-25-30, MSI 25-30-35 D K ST3A S1-S5 Repair Manual_647659EN.pdf
Manitou MC 20 E Spare Parts Catalogue_47053.pdf
Manitou MC 40 C Spare Parts Catalogue_47473.pdf
Manitou MC, MSI 25-30-35 D K ST5 S1 Spare Parts Catalog_647839.pdf
Manitou MC, MSI 25-30-35 D K ST5 S1 Spare Parts Catalog_647839_Part1.pdf
Manitou MC-X 18-2(4) D K ST3A S1 Spare Parts Catalog_647838.pdf
Manitou ME 315,ME 316,ME 318,ME 320 Repair Manual.pdf
Manitou ME 315,ME 316,ME 318,ME 320 Series 2 Repair Manual.pdf
Manitou ME 315-316-318-320 48V S3 US Repair Manual_647580EN.pdf
Manitou ME 418-420-425-445-450 (48V-80V) S3 US Repair Manual_647561EN.pdf
Manitou ME 425, ME 430 Repair Manual.pdf
Manitou ME418 ME420 ME425 ME430 Series 2 Repair Manual.pdf
Manitou MI 15-18-20-25-30-35 Series Repair Manual_647364EN.pdf
Manitou MI 15G-18G-20G-25G-30G-35G S2 US Repair Manual_647679EN.pdf
Manitou MI 50-60-70 Series Repair Manual_647645EN.pdf
Manitou MI 60, MI 70 Turbo Series 2-E2 Repair Manual.pdf
Manitou MI 60H 70H Series 1-E2 Repair Manual_547913EN.pdf
Manitou MI MI-X 40-45-50 Repair Manual_647510EN.pdf
Manitou MI, MI-X 50-60-70-80-100 Repair Manual_647645EN.pdf
Manitou MI-X 50L, MI-X 60D, MI-X 70D Repair Manual_647521EN.pdf
Manitou MSI 20-25-30-35 T Repair Manual_647473EN.pdf
Manitou MSI 20-25-30-35 T, MH 20-25T Buggie Repair Manual.pdf
Manitou MSI 20-25-30-35, MH 20_25-4 Series 2-E2 Repair Manual.pdf
Manitou MSI 20G-25G-30G Repair Manual_547774EN.pdf
Manitou MSI 40 H, MSI 50 H Series 1-E2 Repair Manual_0-1-M117EN.pdf
Manitou MSI 40 MSI 50 Repair Manual_547783EN.pdf
Manitou MSI 40,50 Turbo Evolution Series 1-E3 Repair Mannuals.pdf
Manitou MSI 40-50 T S3 ST3B Repair Manual_647180EN.pdf
Manitou New 1000 Series(Perkins) AJ-AS-YG-YK Workshop Manual.pdf
Manitou Series 3 Euro 3(M26-M50-4 T) Repair Manual.pdf
Manitou SLT 415,SLT 415B,SLT 420B Series 1,2-E2 Repair Manual.pdf
Manitou TMT 25.25 25.20 25.15 Series 1-E2 Repair Manual.pdf
Manitou TMT 315-320-322 Series Repair Manual.pdf
Manitou TMT Series 1,2 Euro 3(TMT 25-TMT 27) Repair Manual_647268EN.pdf
Manitou Y48130X Y43160X Y8140X Y48150X Repair Manual_647119EN.pdf













文章录入:vixiu    责任编辑:vixiu 
  • 上一篇文章: 没有了

  • 下一篇文章: 没有了
  • 发表评论】【加入收藏】【告诉好友】【打印此文】【关闭窗口
    最新热点 最新推荐 相关文章
    没有相关文章
      网友评论:(只显示最新10条。评论内容只代表网友观点,与本站立场无关!)
    QQ微信同号:838829397 Email:www@vixiu.com
    Copyright© 2007-2022vixiu .com 版权所有 维修资源网 粤ICP备11034860号